Một ngôi nhà 2 tầng khang trang, hiện đại với đầy đủ tiện nghi là niềm ao ước của rất nhiều người. Tuy nhiên, đôi khi, trong tay họ lại chỉ sở hữu một số tiền khá khiêm tốn.
Vậy, làm thế nào để xây nhà 2 tầng giá rẻ trong bối cảnh kinh tế khó khăn, vật giá leo thang như hiện tại? Công ty CP Thiết kế và Xây dựng Hà Thành xin gửi tới quý bạn đọc một vài kinh nghiệm xây nhà 2 tầng tiết kiệm chi phí.
Các yếu tố ảnh hưởng đến chi phí xây nhà 2 tầng
1. Vị trí địa lý và địa chất của mảnh đất xây dựng
Vị trí địa lý và tính chất của mảnh đất được chọn để xây nhà rất quan trọng.
Không kể đến vấn đề phong thủy, một mảnh đất có địa hình thông thoáng, thuận lợi cho việc di chuyển của các loại xe chuyên chở nguyên vật liệu sẽ giúp bạn tiết kiệm được một khoản tiền cho chi phí vận chuyển.
Ngược lại, mảnh đất nằm sâu trong ngõ khiến quá trình vận chuyển trở nên khó khăn không chỉ ảnh hưởng đến thời gian thi công mà còn có thể khiến bạn phải mất thêm một khoản chi phí cho quá trình luân chuyển nguyên vật liệu từ đầu ngõ vào đến nơi xây dựng.

Khu đất rộng rãi, thoáng đãng thích hợp cho việc vận chuyển nguyên vật liệu
Ngoài ra, địa chất, hay nói dân dã hơn là đặc tính của mảnh đất được chọn để xây nhà cũng ảnh hưởng đến số tiền bạn bỏ ra để xây dựng. Mảnh đất được chọn để xây dựng phải thật chắc chắn, đảm bảo chịu lực tốt khi xây dựng, không có độ lún sụt trong quá trình thi công. Nếu không đảm bảo được các yếu tố này, đội ngũ xây dựng bên phía nhà thầu buộc phải gia cố thêm móng cọc bê tông cốt thép để đảm bảo các yêu cầu kỹ thuật trong xây dựng. Và như thế, bạn sẽ phải mất thêm một khoản tiền chi cho công tác gia cố này.

Quá trình gia công nền đất sẽ khiến bạn mất thêm chi phí xây dựng
>> Xem ngay: [HOT] Giá xây nhà 2 tầng trọn gói mới nhất 2021
2. Quy mô và thiết kế của ngôi nhà
Khi đã xác định xây nhà 2 tầng, bạn không cần quá chú trọng đến diện tích miếng đất dùng để xây dựng. Chỉ cần một miếng đất có diện tích khoảng 80 -100m2 là bạn đã có thể sở hữu một ngôi nhà 2 tầng rộng rãi, thoải mái cùng với một phần diện tích nhỏ để làm vườn hoa trang trí.
Thay vì tốn một khoản tiền khá lớn để tìm mua một mảnh đất rộng hơn, bạn có thể dùng số tiền đó để chi cho những thứ khác cần thiết hơn; hoặc đơn giản là bạn có thể tiết kiệm chúng.

Mẫu nhà 2 tầng diện tích 80m2
Thêm vào đó, những thiết kế quá rườm rà và phức tạp sẽ khiến thời gian xây dựng lâu hơn, và như vậy cũng khiến chi phí xây nhà tăng thêm đáng kể.
3. Chi phí vật liệu xây dựng
Vật liệu xây dựng là yếu tố vô cùng quan trọng quyết định đến chất lượng của cả ngôi nhà nên việc lựa chọn nguyên vật liệu nào phù hợp với điều kiện kinh tế của gia chủ nhưng vẫn đảm bảo các yêu cầu kỹ thuật trong xây dựng là một vấn đề khá nan giải.

Chi phí vật liệu xây dựng có tác động như thế nào đến toàn bộ chi phí xây dựng của bạn?
Những gia đình có tiềm lực kinh tế tốt thường sẽ lựa chọn nguyên vật liệu chất lượng nhất, cao cấp nhất. và tất nhiên, chi phí bỏ ra cho việc mua dùng nguyên vật liệu cũng là một con số không nhỏ.
Những gia đình có kinh tế vừa phải sẽ lựa chọn những loại nguyên vật liệu tầm trung, vừa tốn ít chi phí hơn, vừa đảm bảo các yêu cầu về kỹ thuật.
Những gia đình còn khó khăn trong kinh tế thường sẽ ưu tiện luwajc họn những loại nguyên vật liệu có sức bền và có thông số kỹ thuật tốt thay vì những yếu tố khác như mẫu mã để tiết kiệm chi phí ở mức tối đa.
4. Thời điểm xây nhà
Tưởng chừng như thời điểm xây nhà không có tác động qua lại nào đến việc xây nhà 2 tầng giá rẻ nhưng đây cũng là một yếu tố không nên bỏ qua khi tính toán đến chi phí xây nhà.

Xây nhà thời điểm nào là thích hợp?
Có những lúc, giá của nguyên vật liệu tăng khá nhanh và manh. Đó là thời điểm nhạy cảm của xây dựng. Qua giai đoạn này, giá cả nguyên vật liệu lại giảm xuống.
Ngoài ra, bạn cũng không nên xây nhà vào lúc tiết trời ẩm thấp và có mưa. Như vậy, không chỉ kéo dài thời gian xây dựng mà bạn cũng sẽ phải gánh chịu thêm 1 phần chi phí cho vấn đề hao hụt nguyên vật liệu gây ra
5 lưu ý giúp bạn xây nhà 2 tầng tiết kiệm chi phí
Cần lưu ý những điểm gì để xây nhà trọn gói 2 tầng tiết kiệm chi phí? Hãy cùng Hà Thành House điểm qua 5 lưu ý sau đây nhé:
1. Cân nhắc về quy mô cũng như tổng diện tích cần xây dựng
Như đã đề cập ở trên, quy mô và tổng diện tích xây dựng có ảnh hưởng rất lớn đến chi phí mà chúng ta phải bỏ ra trong quá trình xây nhà. Một ngôi nhà 2 tầng có diện tích sử dụng vừa đủ, mỗi một không gian sử dụng đều hợp lý, không quá lãng phí sẽ khiến tổng thể ngôi nhà của bạn đẹp và tạo được ấn tượng tốt.

Quy mô và tổng diện tích xây dựng quyết định đến chi phí xây nhà của bạn
2. Tính toán thời điểm xây dựng thích hợp
Bạn phải xem xét và tính toán thời điểm xây dựng sao cho thật hợp lý. Nên chọn thời điểm khi mà thị trường xây dựng không quá sôi nổi, như vậy, giá thành của nguyên vật liệu cũng sẽ giữ được ở mức ổn định, không có sự gia tăng gây tốn kém chi phí.
Thêm vào đó, mùa khô là mùa rất thích hợp để xây nhà. Một số loại nguyên vật liệu, điển hình là cát vàng sẽ không bị hao hụt do ngấm nước mưa.
>>Tham khảo ngay: Báo giá xây nhà 2 tầng 1 tum chính xác nhất
3. Lựa chọn nguyên vật liệu hợp lý
Làm nhà 2 tầng giá rẻ tưởng chừng như đơn giản nhưng thật ra cần phải lưu ý khá nhiều. Điển hình chính là vấn đề giá cả của nguyên vật liệu được sử dụng.

Lựa chọn nguyên vật liệu như thế nào để xây nhà 2 tầng tiết kiệm chi phí?
Tùy thuộc vào điều kiện kinh tế của gia đình mà lựa chọn nguyên vật liệu xây nhà cho phù hợp. Cần đề cao các yêu cầu về kỹ thuật trong xây dựng thay vì những yếu tố khác như mẫu mã nếu gia đình bạn không có tiềm lực kinh tế mạnh.
4. Lưu ý về cách bố trí tổng thể căn nhà
Hiện nay, xây nhà 2 tầng đơn giản thường được thiết kế và bố trí như sau:
Tầng trệt: Không tính đến không gian sân vườn nhỏ bên ngoài và khu để xe riêng biệt thì thường có phòng khách, phòng bếp và 1 nhà vệ sinh. Ngoài ra, nếu có thể, diện tích phòng khách, phòng bếp cùng khu vực để xe có thể thu hẹp lại một chút để dành thêm diện tích cho một phòng ngủ có diện tích vừa phải.
Tầng hai: tùy thuộc vào số lượng thành viên trong gia đình mà tầng 2 có thể có 2-3 phòng ngủ. Tuy nhiên, nếu tầng trệt đã có 1 phòng ngủ thì tầng 2 chỉ nên thiết kế 2 phòng ngủ 1 lớn một nhỏ. Trong phòng ngủ lớn thường có kèm nhà vệ sinh khép kín. Phòng ngủ nhỏ sẽ sử dụng nhà vệ sinh bên ngoài kết hợp với không giặt phơi đồ cũng như giặt giũ.

Bản vẽ một ngôi biệt thự 2 tầng có 4 phòng ngủ
5. Lựa chọn nhà thầu uy tín, chất lượng
Một yếu tố không thể bỏ qua giúp bạn vừa sở hữu một ngôi nhà 2 tầng đẹp, vừa tiết kiệm được chi phí đó là lựa chọn nhà thầu.
Một nhà thầu uy tín và chất lượng là một đơn vị được nhiều người tin tưởng, nhận được đánh giá cao từ phía khách hàng. Công ty CP Thiết kế và Xây dựng Hà Thành rất tự hào khi được là 1 trong 4 công ty xây dựng chuyên nghiệp tại Hà Nội được khách hàng trao trọn niềm tin.

Hà Thành House - giải pháp thi công chuyên nghiệp
Chúng tôi sở hữu đội ngũ kỹ sư, kiến trúc sư, kỹ thuật viên và công nhân lao động chuyên nghiệp, được đào tạo bài bản, có kiến thức và kỹ năng tốt trong lĩnh vực xây dựng, đảm bảo sẽ mang đến cho khách hàng sự hài lòng tuyệt đối.
Xem ngay: Bí quyết để xây nhà 2 tầng 1 tỷ vừa đẹp vừa sang
Một số mẫu nhà 2 tầng hiện đại, sang trọng, chi phí phải chăng
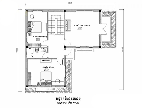
Mẫu nhà 2 tầng chữ L diện tích 100m2
Hiện nay, nhà được xây theo dạng chữ L khá phổ biến bởi sự tiện nghi trong cách bày trí và thiết kế không gian.Với diện tích khoảng 100m2, bạn có thể sở hữu một ngôi nhà 2 tầng chữ L vô cùng hiện đại và sang trọng.

Mặt tiền nhà 2 tầng chữ L diện tích 100m2

Bản vẽ thiết kế mặt bằng tầng 1

Bản vẽ thiết kế mặt bằng tầng 2
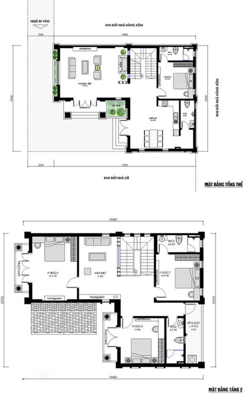
Mẫu nhà 2 tầng chữ L 4 phòng ngủ
Với những gia đình có đông thành viên, mẫu nhà 2 tầng chữ L 4 phòng ngủ sẽ là sự lựa chọn tuyệt vời nhất.

Mặt tiền của nhà 2 tầng 4 phòng ngủ dạng chữ L

Bản vẽ thiết kế mặt bằng tầng 1 và tầng 2
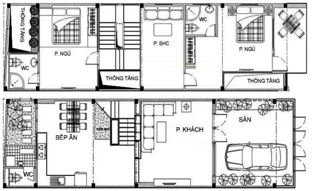
Mẫu nhà ống 2 tầng diện tích 80m2
Với diện tích 80m2 bạn hoàn toàn có thể sở hữu một ngôi nhà 2 tầng dạng ống ấn tượng và đẹp mắt như này.

Nhà ống đã quá đỗi quen thuộc với chúng ta

Bản vẽ thiết kế mặt bằng tầng 1 và tầng 2 của nhà ống diện tích 80m2
Trên đây là một vài kinh nghiệm khi xây nhà 2 tầng giá rẻ mà Hà Thành House muốn chia sẻ đến mọi người. Hy vọng, sẽ có cơ hội hợp tác cùng quý khách hàng trong thời gian gần nhất.
Mọi thông tin chi tiết về dịch vụ xây nhà ở trọn gói, giá rẻ tại Công ty CP Thiết kế và Xây dựng Hà Thành xin vui lòng liên hệ qua số điện thoại 0898 502 333 để được tư vấn rõ hơn.

Công ty Cổ phần thiết kế và Xây dựng Hà Thành
Địa chỉ: Số 42, Tổ 18, Tập thể trường Cao đẳng Du lịch Hà Nội, Phường Nghĩa Đô, Quận Cầu Giấy, T.p Hà Nội
Văn phòng giao dịch 1: Tòa nhà số 5A, đường Lê Đức Thọ, Quận Cầu Giấy, Hà Nội
Văn phòng giao dịch 2: Tòa S202, Khu đô thị Vinhome Smart City, Phường Tây Mỗ, Quận Nam Từ Liêm, Hà Nội
Điện thoại: 0898 502 333
Email: hathanhhouse@gmail.com
Website: https://hathanhhouse.vn 
 
