Trong qua trình tìm hiểu về các đơn vị xây dựng uy tin tại Hà nôi. Anh Hưng quê Vụ Bản, Nam Định đã chọn điểm dưng chân là Hà Thành. Công ty chuyên thiết kế thi công nhà chọn gói, với sự tin tưởng của anh và gia đình, https://hathanhhouse.vn/gioi-thieu đã không làm gia đình anh lựa chọn sai.

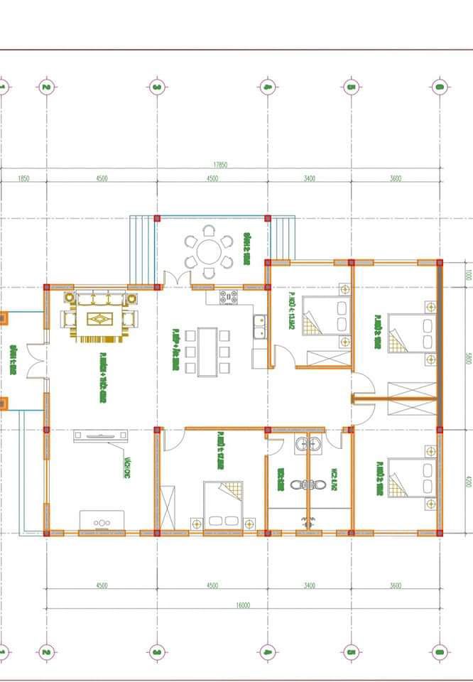
Căn nhà vườn mái nhật nhà anh có tổng diện tích 145m2 với thiết kế 3 phòng ngủ 1 phòng khách, 1 bếp theo công năng cũng như nhu cầu sử dụng của gia đình Hà Thành đã làm hài lòng gia đình anh.

Chụp qua camera

Vận chuyển tận nơi
Vận chuyển vật liệu xây dựng tận nơi nhanh chóng
Bảo đảm chất lượng
Dịch vụ bảo đảm chất lượng. Chất lượng là tôn chỉ hàng đầu
Hỗ trợ 24/7
Hotline: 0898 502 333
Chính sách bảo hành
Bảo hành lâu dài, bảo trì tận tình nhanh chóng