Hiện nay, nhà 2 tầng đang là xu hướng được nhiều gia đình ưa thích bởi mẫu nhà này vừa có thể tiết kiệm được diện tích xây dựng lại có thể thoải mái thể hiện phong cách riêng qua những thiết kế bắt mắt, sang trọng. Tuy nhiên, khi chỉ có trong tay ngân sách khoảng 700 triệu, chắc hẳn bạn đã phải đắn đo rất nhiều.
Hãy cùng Hà Thành House khám phá bí quyết xây nhà 2 tầng khoảng 700 triệu vừa đẹp vừa hiện đại qua bài viết sau đây nhé!
Xây nhà 2 tầng khoảng 700 triệu có khả thi không?
Như đã đề cập ở trên, chỉ với ngân sách khoảng 700 triệu, bạn hoàn toàn có thể sở hữu một ngôi nhà 2 tầng có thiết kế đẹp và hiện đại. Tuy nhiên, cái khó trong trường hợp này chính là với khoản tiền đó, ta chỉ có thể hoàn thiện thi công phần thô sơ nhất, các yếu tố đi kèm như nội thất hay chi phí sơn nhà, chi phí trang trí phụ thêm là chưa tính đến.
THAM KHẢO: Bảng giá xây dựng nhà cấp 4 trọn gói chi tiết NHẤT
Các yếu tố ảnh hưởng đến giá xây nhà 2 tầng
Thiết kế nhà
Yếu tố đầu tiên có ảnh hưởng đến chi phí xây nhà 2 tầng chính là kiểu dáng cùng thiết kế của nhà. Những mẫu thiết kế đơn giản sẽ tiêu tốn của bạn ít chi phí hơn là những thiết kế cầu kỳ, đòi hỏi nhiều thời gian và công sức để hoàn thiện.

Xây nhà 2 tầng khoảng 700 triệu là một bài toán khó
Hiện nay, xu hướng thiết kế tối giản và thanh lịch đang được giới trẻ ưa chuộng. Hãy chọn cho ngôi nhà 2 tầng thân yêu của mình một thiết kế đơn giản nhưng không kém phần hiện đại, sang trọng như vậy nhé.
Đơn giá nguyên vật liệu
Yếu tố tiếp theo không kém phần quan trọng có ảnh hưởng không nhỏ đến chi phí xây nhà 2 tầng chính là giá thành của nguyên vật liệu. Thay vì chọn những nguyên vật liệu có mẫu mã và kiểu dáng đa dạng, bạn hãy ưu tiên chọn những loại cơ bản, đảm bảo về tính chất xây dựng.

Nguyên vật liệu xây nhà có tác động tới chi phí xây dựng
Có một sự thật là, giá thành nguyên vật liệu cũng có thể thay đổi theo sự thay đổi “thất thường” của thị trường xây dựng. Vào những lúc cao điểm, thị trường xây dựng sục sôi, đơn giá nguyên vật liệu có thể bị đội lên gấp rưỡi, thậm chí là gấp 2 lần so với bình thường.
Vậy nên, lựa thời điểm xây nhà lúc giá nguyên vật liệu bình ổn là một giải pháp hữu hiệu giúp bạn tiết kiệm được chi phí xây nhà đáng kể đó.
>>Tham khảo ngay: [BẠN CÓ BIẾT] Giá xây nhà ống 2 tầng phụ thuộc vào các yếu tố nào?
Đơn giá nhân công xây dựng
Đơn giá nhân công cũng là một nhân tố không thể bỏ qua khi tính đến chi phí xây nhà. Muốn xây nhà 2 tầng giá 700 triệu vừa đẹp vừa hiện đại thì bạn nên lựa chọn một đơn vị thi công chuyên nghiệp, có hợp đồng tính công rõ ràng để tránh phát sinh những khoản tiền công không đáng có.

Nên lựa chọn đơn vị thi công thật kỹ càng
Vậy nên, hãy lựa chọn một đơn vị thi công uy tín và chuyên nghiệp, trước là có thể đảm bảo về độ chắc chắn và tính an toàn trong xây dựng, tiếp theo chính là có thể dự toán trước được chi phí nhân công, tránh phát sinh những khoản không cần thiết.
Các mẫu nhà 2 tầng 700 triệu bạn không nên bỏ lỡ
Mẫu nhà số 1
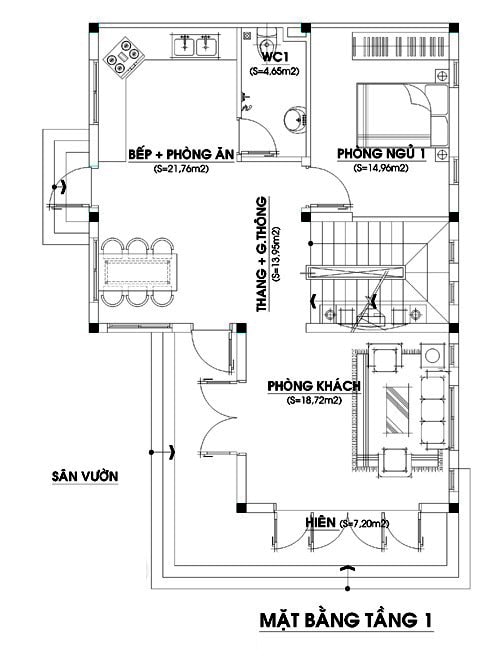
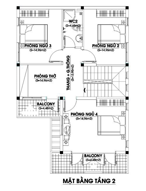
Đây là mẫu thiết kế nhà 2 tầng dạng chữ L với tổng diện tích 80m2. mái thái màu xanh chính là điểm nhấn của mẫu thiết kế này.

Mẫu nhà 2 tầng 700 triệu số 1
Mặt bằng tầng 1 được bố trí gồm phòng khách, bếp cùng nhà ăn và 1 phòng ngủ chính, còn tầng 2 là 3 phòng ngủ và 1 phòng thờ kết hợp cùng 2 ban công rộng rãi, thoáng mát. Chắc hẳn đây sẽ là mẫu nhà trong mơ của rất nhiều người.

Mặt bằng tầng 1

Mặt bằng tầng 2
Mẫu nhà số 2
Mẫu nhà 2 tầng 700 triệu tiếp theo mà Hà Thành muốn chia sẻ đến mọi người chính là một thiết kế 2 tầng mái bằng hiện đại.

Nhà 2 tầng giá khoảng 700 triệu
Điểm nổi bật trong thiết kế này chính là khoảng không gian thông với bên ngoài trên tầng 2 và hệ thống tiểu cảnh được bố trí quanh nhà vô cùng hợp lý. Tone màu chủ đạo là nâu sữa và trắng càng khiến ngôi nhà sang trọng và hiện đại hơn.
>> Xem ngay: [HOT] Xu hướng thiết kế mặt tiền nhà 2 tầng đẹp hiện đại nhất 2021
Mẫu nhà số 3
Mẫu nhà số 3 xuất hiện trong list này cũng là một thiết kế nhà 2 tầng mái bằng với phần cách điệu vô cùng ấn tượng đến từ mặt tiền tầng 2.

Xây nhà 2 tầng khoảng 700 triệu không hề khó như bạn nghĩ.
Phân ban công tầng 2 là sự kết hợp giữa lan can bằng kính trong suốt và một bức tường cách điệu, mang lại cho ngôi nhà nét độc đáo rất riêng. Cùng với đó, phần mái cũng có hơi hướng cách điệu khiến toàn bộ thiết kế trở nên vô cùng hút mắt.
Nếu không có sự tiết lộ của Hà Thành House, liệu bạn có nghĩ rằng chi phí xây dựng các thiết kế trên chỉ khoảng 700 triệu đồng? Thật khó tin phải không ạ? Hãy đến với Hà Thành House, chúng tôi là đơn vị thi công chuyên nghiệp và uy tín sẽ giúp bạn thực hiện được ước mơ xây nhà chỉ với 700 triệu đồng.
Đội ngũ kiến trúc sư của chúng tôi sẽ tư vấn cho bạn những phương án thiết kế tối ưu nhất, giúp bạn tiết kiệm được chi phí xây dựng ở mức tối đa mà vẫn đảm bảo các yêu cầu về kỹ thuật.

Hà Thành House - Giải pháp thi công chuyên nghiệp
Hiện nay, chúng tôi có cung cấp dịch vụ Xây nhà trọn gói vô cùng tiện lợi, có thể giúp khách hàng tiết kiệm được kha khá thời gian và công sức trong quá trình giám sát và xây dựng.
Còn chần chờ gì nữa mà không liên hệ ngay với HÀ THÀNH HOUSE để được tư vấn rõ hơn.
Mọi thông tin chi tiết xin liên hệ:
Công ty Cổ phần thiết kế và Xây dựng Hà Thành
Địa chỉ: Số 42, Tổ 18, Tập thể trường Cao đẳng Du lịch Hà Nội, Phường Nghĩa Đô, Quận Cầu Giấy, T.p Hà Nội
Văn phòng giao dịch 1: Tòa nhà số 5A, đường Lê Đức Thọ, Quận Cầu Giấy, Hà Nội
Văn phòng giao dịch 2: Tòa S202, Khu đô thị Vinhome Smart City, Phường Tây Mỗ, Quận Nam Từ Liêm, Hà Nội
Điện thoại: 0898 502 333
Email: hathanhhouse@gmail.com
Website: https://hathanhhouse.vn
